
The Crossing, Spring Mountain
Client:
Lendlease Communities
Capabilities:
The Crossing
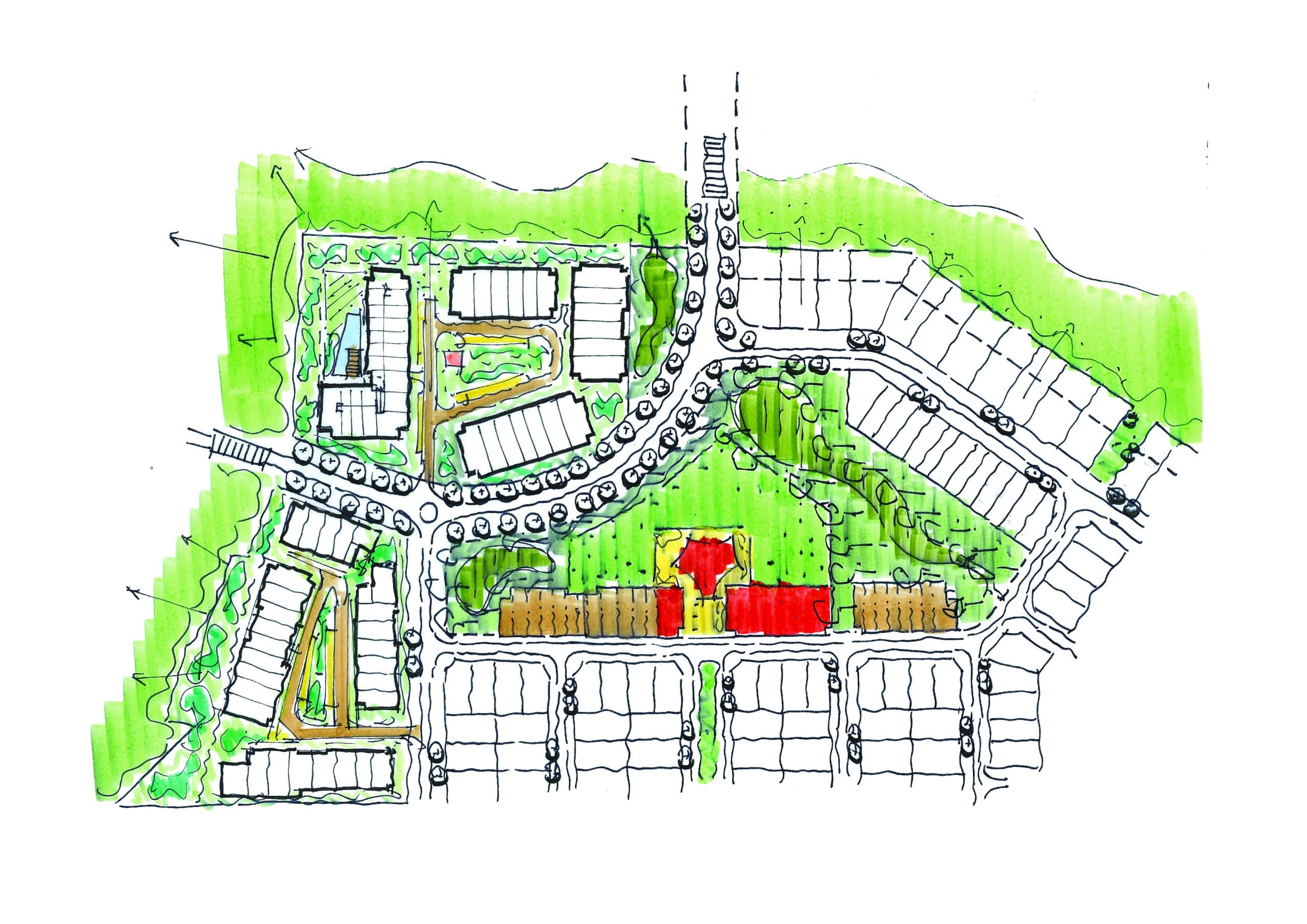
Completely surrounded by incredible conservation forestry, The Crossing at Spring Mountain creates a haven for residents where all roads and views lead to green. One of the last villages to be delivered at Springfield Rise, the challenge was to create a distinctive difference to the existing areas, while also leveraging and connecting to all the built amenities and established network of community facilities.
Since 2017, we have led the master planning, urban design, and landscape architecture of The Crossing, with construction commenced in mid-2022. Urbis worked with Lendlease to guide all aspects of the design development – robust place-making visions and principles, innovations, visual checklists, benchmarking, concept design for slope, open space network planning, Council negotiations and creative WSUD management.

We envisaged a community linked by nature, where life is a journey framed by the landscape.
Nature-based living
The vision and all design work brings nature to the forefront of the lifestyle for the 2,600 people that will call The Crossing home.
The villages are perched high on the ridgeline, requiring special attention to slope, retaining walls and drainage to ensure the precinct is developable. The design also considers views, walkability, and housing products in great detail to ensure we created a great place that is also interesting, engaging and distinctive.
Connecting to the existing areas of Springfield Rise (established schools, parks and shops) was also critical to the design, so strong, legible and safe links were a foundation element for the master plan. One of these links proposes an uninterrupted green linear space for a shady, off-road shared pathway to safely connect through the community.
The open space network was another key driver for the design, with leveraging the surrounding forest being a huge opportunity. To engage with this, a continuous recreation circuit looping around the entire perimeter of the site is proposed, with key internal east-west and north-south links connecting through the village to ensure legible and advantageous links to green.
Creating a hero park at the entry that utilises the slope to announce the arrival into the village was an important place-making element, as well as an opportunity to integrate a unique play experience that is built into the slope.


Connecting the community to the open space and recreation nodes was always at the forefront of the design – as it will be for the residents and their lifestyle












